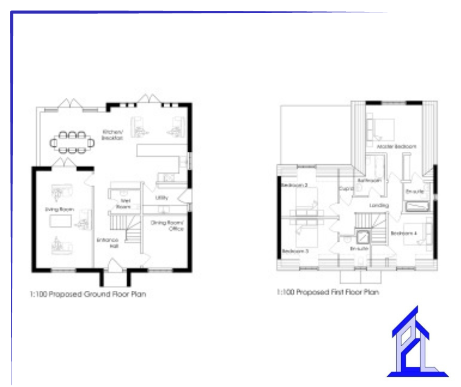
Residential

We offer support for a variety of residential projects from extensions and renovations to new build homes.